![]() |
![]() |
|
ホーム>輸入住宅アパート
|
| 輸入住宅アパート |
| 神奈川県横浜市港北ニュータウン内にて輸入住宅アパートを計画中です。 不動産業者に先駆けて、事前計画をお知らせいたします。 (概要) 横浜市営地下鉄「センター南」駅より、徒歩10分程度。 2年後に、新駅「葛が谷」より、徒歩5分。(横浜市営地下鉄グリーンライン) 周辺環境は、公園もあり閑静な住宅地。 間取り 1LDK×4住戸を予定(40〜45平米) 賃料 未定 駐車場 1住戸に1台 時期 2015年10月〜末頃完成予定 入居のお問合せ アパート経営のお問合せ |
| <完成イメージ> 詳細イメージは、横浜市輸入住宅施工例へ。 | |
![]() |
![]() |
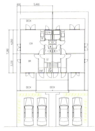
| <計画中のラフ図面> | |
![]() |
![]() |
| 1階平面図 |
2階平面図 |
![]() |
![]() |
| 立面図1 |
断面図 |
![]() |
|
| 立面図2 | |
|
|
|
| © 2002-2023 スオミ設計 Mail:web@piia-log.com 〒155-0033 東京都世田谷区代田3-28-9 |