ログハウス,輸入住宅 ログハウス,田舎暮らし フィンランド,レンガ倉庫
 ログハウス/輸入住宅図面集、日々の提案図面
北欧ログハウス>ログハウス住宅図面、提案図面

ログハウス(輸入住宅)図面、提案図面の一部をご紹介します。
(下記図面を参照頂き、ご希望をお知らせ下さい。無料で図面訂正・作成いたします。)


<平屋ログハウス図面> ※各図面の数字は平米数
LEVEUS52/LEVEUS60/LEVEUS64/LEVEUS70/LEVEUS79/LEVEUS83/LEVEUS86/LEVEUS89/ LEVEUS89b/ LEVEUS99/
LEVEUS106/ LEVEUS106b/LEVEUS119/LEVEUS130
平屋TORPPAシリーズ10タイプ(18,20,23,27,58,65,89,91,126,173)
TORPPA40/TORPPA61/TORPPA84


<ロフト付ログハウス図面>
 LOFT50/ LOFT52/LOFT45/LOFT60/ LOFT66/LOFT75/LOFT89/LOFT92/ LOFT97/LOFT98/LOFT98t/
LOFT102/ LOFT111/LOFT106/LOFT124/LOFT126/LOFTシリーズ10タイプ(31,38,46,51,53,55,59,70,79,90)
VAPAUS129/VAPAUS132

<ミニログハウス>
(ローコスト規格14タイプ)
2帖・3.7帖/4帖/5.8帖・7.5帖/9.6帖・12.5帖/12.7帖/15.9帖(1K,1DK)/19帖(1K,1DK)/1LDK/6帖+ロフト/9.6帖+ロフト/ログガレージ
(自由設計タイプ)
4.5帖/6帖ロフト/10帖/10帖ロフト/10帖ロフト2/8+10帖

<店舗シリーズ(KAUPPA)図面掲載>
KAUPPA13/KAUPPA29/KAUPPA41


<輸入住宅、ほか参考図面>
ミニハウス/PB32/輸入賃貸住宅/外構・フェンス
参考基礎図(独立基礎、布基礎、ベタ基礎)




日々の提案図面

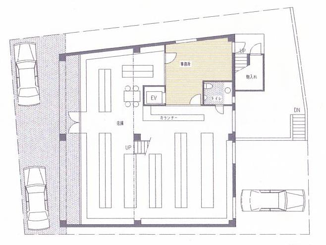
<神奈川県・店舗付住宅(ログハウス)>


<神奈川県・自由設計ログハウス>

<東京都・自由設計住宅>


<千葉県・2世帯住宅>
 左右は反転プラン。中央のデッキ部分が交流・共有スペースとなります。


<東京都・自由設計住宅

 地下・1階・2階。通常プランに加えて、ラウンド案をご提示しました。


<宮崎県・サーファーズハウス>

 8棟続きの小さなリゾート開発です。サーフボードが見えますか?


<栃木県・自由設計ログハウス>

 和室と広いデッキ。ガゼボ(離れ)が趣味のスペースに。


<神奈川県・自由設計店舗兼住宅ログハウス>
 RC地下、1・2階+ロフトプラン。


<神奈川県・クラブハウス>
 テニスコートに隣接するシンプルでナチュラルな施設。

© 2002-2023 スオミ設計   Mail:web@piia-log.com  〒155-0033 東京都世田谷区代田3-28-9